CRICKET: Renovation plans for The Shed submitted to council

PLANS have been submitted to demolish the existing grandstand at the Ilminster Recreation Ground and extend the sports club popularly known as The Shed.
The proposals have been submitted to South Somerset District Council by Joy Norris, the town clerk to Ilminster Town Council, for the demolition of the grandstand and alterations and building of extension to the sports club.
With Ilminster Town Football Club soon to move from its present headquarters at the Ilminster Recreation Ground in Canal Way to the new Archie Gooch Pavilion in the adjoining Britten’s Field, it means that Ilminster Cricket Club will be solely responsible for The Shed.
But the club knows that it needs to invest in upgrading the much-loved Shed which is – without question – in urgent requirement of some much-needed TLC.
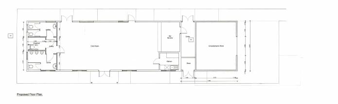
The proposals include knocking down the existing grandstand next to The Shed to allow for an extension to be built on the end of the social club building which will become the cricket club’s groundsman’s store, cellar and general store.
The plans is to do the refurbishment work of The Shed in four phases starting with an enhancement of the roof and the sides of the building including the installation of a porch.
This will then be followed by giving the interior an important makeover before carrying out the groundsman’s store within the proposed extension.
Ilminster Cricket Club will be holding various fundraising events throughout the year to help finance the developments.
A recent music night at the Shrubbery Hotel in Ilminster was a big success and club spokesman Adrian Sims, who helped to organise the event, said they would like to thank everyone who supported it.
The district council has said that it hopes to have made a decision on the planning application by the middle of June 2016.
PHOTO - TOP: How the newly-extended Shed could look if plans are given the go-ahead by South Somerset District Council. This is looking at The Shed from the cricket pitch.

PHOTO - ABOVE: The plans for the extended Shed with the proposed groundsman's store on the right of the drawing.

PHOTO - ABOVE: How the Shed currently looks from the cricket pitch at Ilminster Recreation Ground.
Tags:
Sport.
Recent Posts
ILMINSTER SPORT: Have a go at Pickleball!
ILMINSTER SPORT: Ilminster welcomes Bowls England to town
RUNNING: Minster Milers Mash 10k is getting closer
BOWLS: Triple success for Ilminster
CRICKET: Tony Rice Bar is given an official opening
RUNNING: Minster Milers fly the flag for Ilminster
CRICKET: Legendary commentator Henry Blofeld padding up for Ilminster CC
FOOTBALL: Harrimans provide a perfect fit Ilminster A
BOWLS: Future looks bright for Ilminster club
FOOTBALL: Game called off as Ilminster Town wish injured duo speedy recovery
FOOTBALL: Hard fought draw for Ilminster Town Ladies
FOOTBALL: Spirited Ilminster Town go down fighting against league leaders
FOOTBALL: Ilminster Town grab a late equaliser
RUNNING: Great start for the Minster Milers club
RUNNING: New running club launches in Ilminster

















